Luxury Apartment Complex Coming To 1138 W Belmont in Lakeview
A new apartment building is set to be constructed in one of my favorite Northside Chicago neighborhoods – Lakeview! The building, which is being built on the corner of Belmont and Clifton at 1138 W. Belmont, was green-lighted by the City Council in July 2021.

This will be a big makeover for this intersection in Lakeview. For 98 years – yes, almost a century! – it’s been home to Tenenbaum Hardware. This family-run shop has been a neighborhood staple, complete with friendly dogs ready to greet shoppers at the door. They’ve even helped out with grounds-keeping emergencies at nearby Wrigley Field!

Who’s the Developer for 1138 W Belmont?
Ready for a well-deserved retirement, Tenenbaum’s owners sold the single-story building to local developers, who will usher in exciting change. How local? They kept it right in the neighborhood!
The property was sold to Lakeview’s own SNS Realty Group. And even though they had better offers, the owners of Tenenbaum were swayed by SNS’ promise to respect the neighborhood, and nearby neighbors, as development moves forward.
SNS has made its footprint in Lakeview with a portfolio that includes condominiums, townhomes, mixed-use developments and single-family homes.
Chicago’s own RED Architects was tapped to handle the design for 1138 W. Belmont. They specialize in both residential and commercial projects that range from single-family home remodels to large-scale commercial ventures.
1138 W. Belmont Design Details
Details are beginning to emerge about what Lakeview’s neighbors can expect as development progresses. They were already invited to provide community feedback, which resulted in some changes to the developer’s first pass, and I expect to continue to see additional small tweaks before ground is broken.
Modern New Apartments in Lakeview
Let’s talk through the exterior. While I’ve gotten used to seeing sky-high luxury apartments rising up around downtown Chicago, this new building will be just five-stories tall. But, in charming Lakeview, it’ll be the tallest building in the immediate area.
A mix of masonry and metal cladding, the building will fit into the neighborhood nicely – it’ll be modern, but won’t stand out as if it doesn’t belong amongst the other vintage buildings on the block.
Balconies…For Everyone!
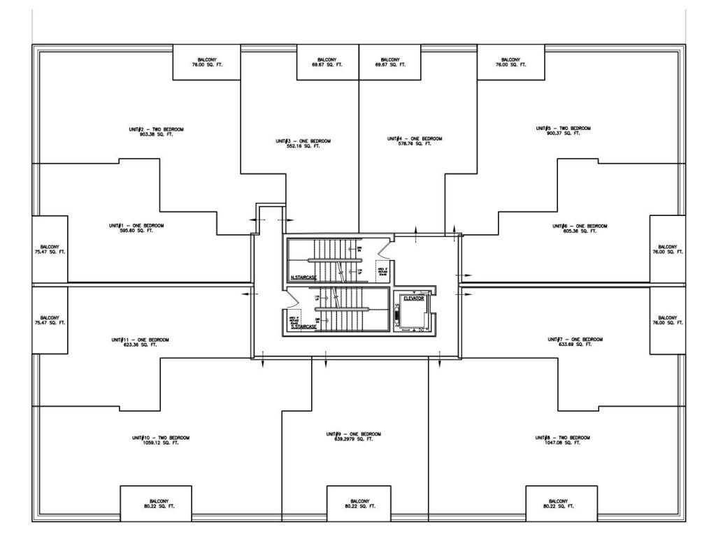
My absolute favorite part of the design is that every apartment has a balcony. This is a treat that renters usually pay extra for, but they’ll come standard at 1138 W. Belmont. And, they’re totally private, with thick brick bases and an inset design that feels like an extension of your living space.
33 apartment units – a mix of one and two-bedroom floor plans – will be anchored by a ground-floor lobby and 4,475 square feet of retail space.

Safe Bets on Features and Amenities
Now, there’s no mention yet if this these new apartments will allow pets, but one jaunt around the neighborhood makes me think they almost have to. The coziness of the neighborhood is a perfect fit for dog-owners, so making the 1138 W. Belmont apartments dog-friendly sure seems like a no-brainer.
The fifth floor features a shared outdoor deck with a kitchenette and lounge, which I assume will be furnished with alfresco dining seating and patio décor. Spending summer evenings perched on the rooftop with an ice-cold beverage sounds pretty idyllic to me!
Currently, the plans call for 16 vehicle parking spaces, which is pending a zoning change to a transit oriented development. Since the building is only a five-minute walk to the CTA Belmont station (Red/Purple/Brown lines), it’s likely that it will be approved.
In addition, bicyclers will be all set with access to 28 bicycle racks. This will be awesome for folks who bike to work or like to hop on the nearby Lakefront Trail, which is just a mile away.
Lively Lakeview Neighborhood
With a mix of classic city residential side streets along several corridors of recreation, food and fun, it is no wonder why Lakeview is one of the more popular neighborhoods in Chicago.
Live in Lakeview, and you’ll have amazing restaurants within walking distance of your apartment. Vegan, Brazilian, Italian and of course, deep-dish pizza; I promise you will not starve when you live in this ‘hood.
Shopping, entertainment and shops are just outside your door too. Stroll along Belmont, Clark, Halsted and Southport streets for great grub, cool shops, and neighborhood hang-outs.
I also love that the whole city is at your feet and easily accessible on the train or bus. Take the train 5 minutes north to catch a Cubs game, then stick around to socialize at Wrigleyville pubs. Or, head a mile south to Lincoln Park and spend the day exploring the green space and bustling neighborhood.

Nearby Conveniences and Highlights
Workplaces in Lakeview
- Advocate Illinois Masonic Medical Center
- VCA Blum Animal Hospital
- Belmont Animal Hospital
Unique Place to Visit in Lakeview
- Wrigley Field
- Boystown/Northalsted
- Reckless Records
- Annoyance Theater
- Stage 773
- Schubas Tavern
- The Catcade
Favorite Restaurants Nearby
- Dark Matter Coffee Bar
- Bittersweet Pastry Shop & Café
- Ukai Sushi
- Will’s Northwoods Inn
- Cheesie’s Pub & Grub
- Ann Sather
- Recanto Brazilian Grill
Close Shopping and Conveniences
- Target
- Trader Joe’s
- Whole Foods
- Mariano’s
- Jewel-Osco
- Paulina Market
- Michael’s
- Home Depot
- Community Pharmacy
Parks You Can Walk or Bike to
- Lake Shore Trail
- Belmont Harbor & Dog Beach
- Kenmore Playlot
Remeber to contact HotSpot Rentals if a Lakeview luxury apartment sounds right for you. Our expert agents would love to help you find the perfect place.

Similar posts
-
Luxury Apartments in Chicago
New Apartment Construction
The Reed Southbank Apartments: Your Ultimate Urban Oasis
-
Luxury Apartments in Chicago
New Apartment Construction
Chicago’s Fulton Market Welcomes New Fulbrix Apartments
-
Apartment Living
Dog/Pet Friendly
Luxury Apartments in Chicago
New Apartment Construction
Onni Fulton Market Brings 373 New Apartments to Downtown Chicago